
Sous compromis !!
Jolie villa de plain pied, rénovée, avec jardin et terrasse, parking privé.
Située de le domaine du Bois de Roly, dans un cadre verdoyant, au calme, à 15 min des barrages de l'eau d'heure.
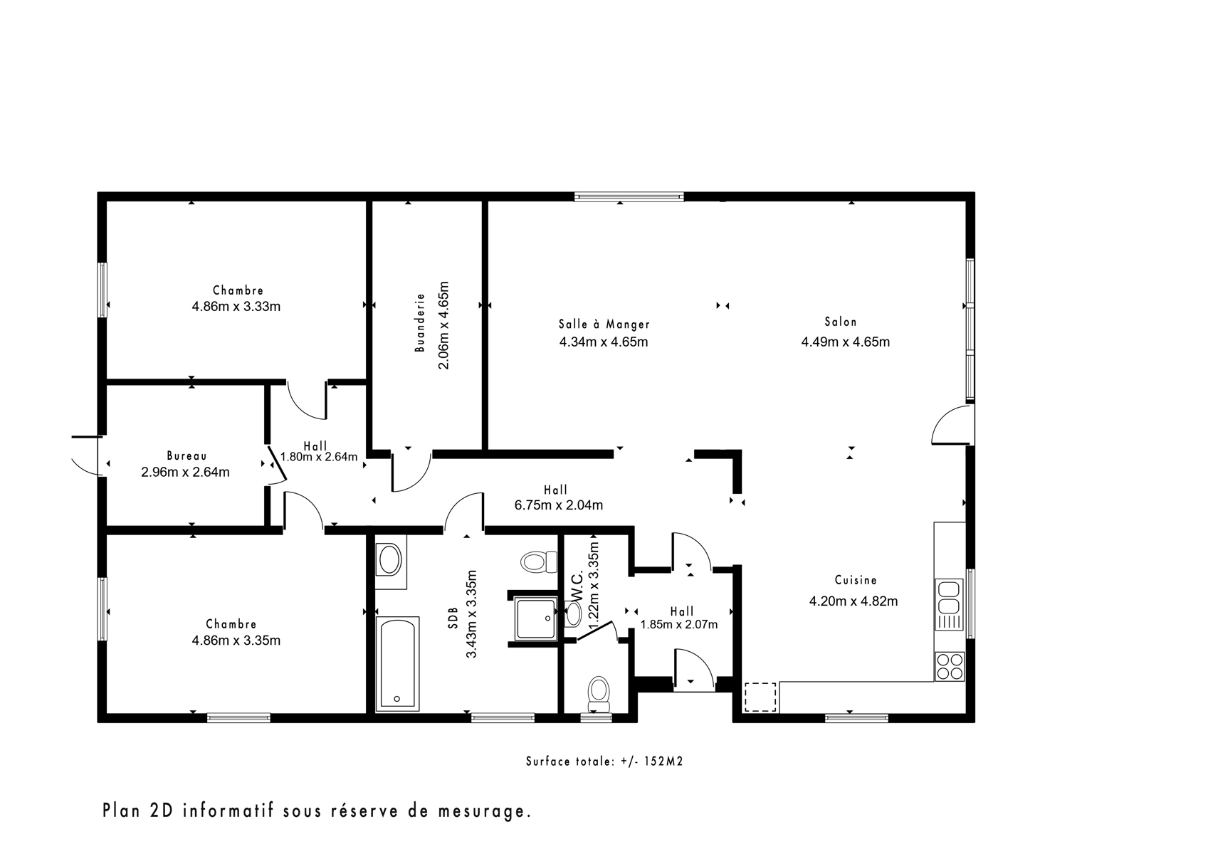
Composée de trois chambres/bureau, grand living ouvert sur une cuisine équipée avec vue sur la terrasse et le jardin, buanderie, toilette individuelle, grand parking.
Le tout proposant sur une surface brute de +/- 170m² (selon PEB).
Domiciliation acceptée dans le domaine, peut convenir aussi comme seconde résidence ou pour du AirBNB sous réserve des accords urbanistiques éventuels à obtenir.
Cc au mazout, compt. ind électricité, compteur passage eau, DV, électricité conforme.
F.O àpd: 245000€*
Charges annuelles : 300€ (eau privée + frais divers de fonctionnement)
Visites sur rdv au 0475533784
PEB C - 41957kwh/an - 247kwh/m²/an - Numéro unique 20230711000107
Informations, surfaces et photos donnés à titre informatif et non conventionnel.
"Le(s) propriétaire(s), vendeur(s) du bien, dispose(nt) de la faculté, de manière totalement libre et autonome, de vendre ou de ne pas vendre. S'il(s) décide(nt) de vendre, il n'est nullement tenu de retenir l'offre la plus élevée mais choisit celle qui lui convient le mieux au regard de ses propres critères (montant de l'offre, conditions suspensives, délai de signatures, etc ...)."
Référence | 5445755 |
---|---|
Catégorie | Maison |
Meublé | Non |
Nombre de chambres | 3 |
Nombre de salles de bain | 1 |
Jardin | Oui |
Terrasse | Oui |
Parking | Oui |
Surface habitable | 170 m² |
Surface du terrain | 1774 m² |
Disponibilité | à l'acte |
Année de construction | 1980 |
---|---|
Année de rénovation | 2015 |
Type de toit | en pente |
Accès handicapés | Non |
---|---|
Cuisine | Oui |
Chauffage (ind/coll) (type (ind/coll)) | individuel |
Ascenseur | Non |
Double vitrage | Oui |
Chauffage (type) | mazout (chauf. centr.) |
Type de cuisine | équipée |
Orientation du bâtiment (façade arrière) | ouest |
---|---|
Type d'environnement | boisé |
Type d'environnement 2 | campagne |
Exposition de la façade avant | nord-ouest |
Largeur front de rue | 19.7 |
---|---|
Surface bâtie (surf. bât. princ.) | 150 |
Nbre de toilette(s) (nombre) | 1 |
Chambre 1 (surface) | 16.2 m² |
Chambre 2 (surface) | 16.3 m² |
Largeur de façade | 11.5 |
Nbre de terrasse(s) (nombre) | 1 |
Salle de séjour (surface) | 41.05 m² |
Cuisine (surface) | 20.24 m² |
Bureau (surface) | 7.8 m² |
Orientation de la terrasse 1 | ouest |
Buanderie | Oui |
---|---|
Bureau | Oui |
Grenier | Oui |
Affectation urbanistique (type) | logement |
---|---|
Destination bâtiment (type) | privé - unifamilial |
Affectation urbanistique | zone de loisirs de séjour |
Égouts | Non |
---|---|
Électricité | Oui |
Eau | Oui |
Châssis (type) | bois |
---|
Attestation du sol | Oui |
---|---|
Certificat d'électricité (oui/non) | oui, conforme |
Certificat électricité - date | 05/07/2023 |
Loué | Non |
---|
Type de revêtement de sol | carrelages |
---|
Label PEB (classe) | C |
---|---|
PEB E-SPEC (kwh/m²/an) | 247 |
E total (Kwh/an) | 41957 |
PEB code unique | 20230711000107 |
PEB valide jusqu'au (datetime) | 11/07/2033 |
Date du PEB (datetime) | 11/07/2023 |